Sie sind hier: Startseite / Publikationen / Basler Schulblatt / Artikel / Schulräume mit Nachtauskühlung

Artikelaktionen

Schulräume mit Nachtauskühlung

01.07.2024
Wenn die Sommerhitze drückt, kann es für Lehr- und Fachpersonen sowie für Schülerinnen und Schüler schwierig sein, sich auf den Unterricht zu konzentrieren. An der Primarstufe Wasgenring sollen Lüftungsklappen helfen, die Schulräume nachts abzukühlen. Das Lüftungssystem könnte auch für andere Schulstandorte interessant sein.
Bild Legende:
Heinz Glanzmann und Dagmar Schünemann vor dem Eingang des Neubaus A. Fotos: Grischa Schwank

13 Grad Celsius. Für einen Mittwochmorgen Ende Mai ist es kühl und bedeckt. Vor dem Eingang des Schulareals der Primarstufe Wasgenring stehen Schulleiterin Patricia Hacker, ED-Projektleiter Heinz Glanzmann und BVD-Projektleiterin Dagmar Schünemann. In den letzten Jahren arbeiteten sie eng zusammen, um hier zwei Neubauten zu planen und zu realisieren, weil der verfügbare Schulraum für die steigende Anzahl Kinder knapp wurde. Seit August 2023 sind die beiden Gebäude A und B in Betrieb und werden von Primarschülerinnen und -schülern genutzt.

Einfache, aber effektive Technik

Mit ungeschulten Augen lässt sich kaum erkennen, was diese beiden Gebäude A und B auszeichnet. Dagmar Schünemann blickt zur Fassade hoch und zeigt auf etwas, das wie eine heruntergekurbelte Fensterstore aussieht. «Dahinter befindet sich ein Fensterflügel, der dank einem Wetterschutzgitter über Nacht offenstehen darf – auch wenn es regnen sollte», ergänzt Glanzmann.

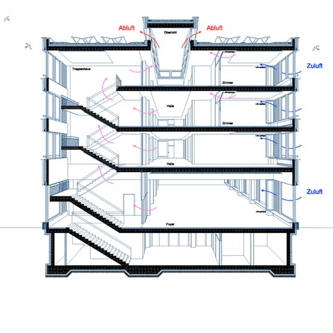
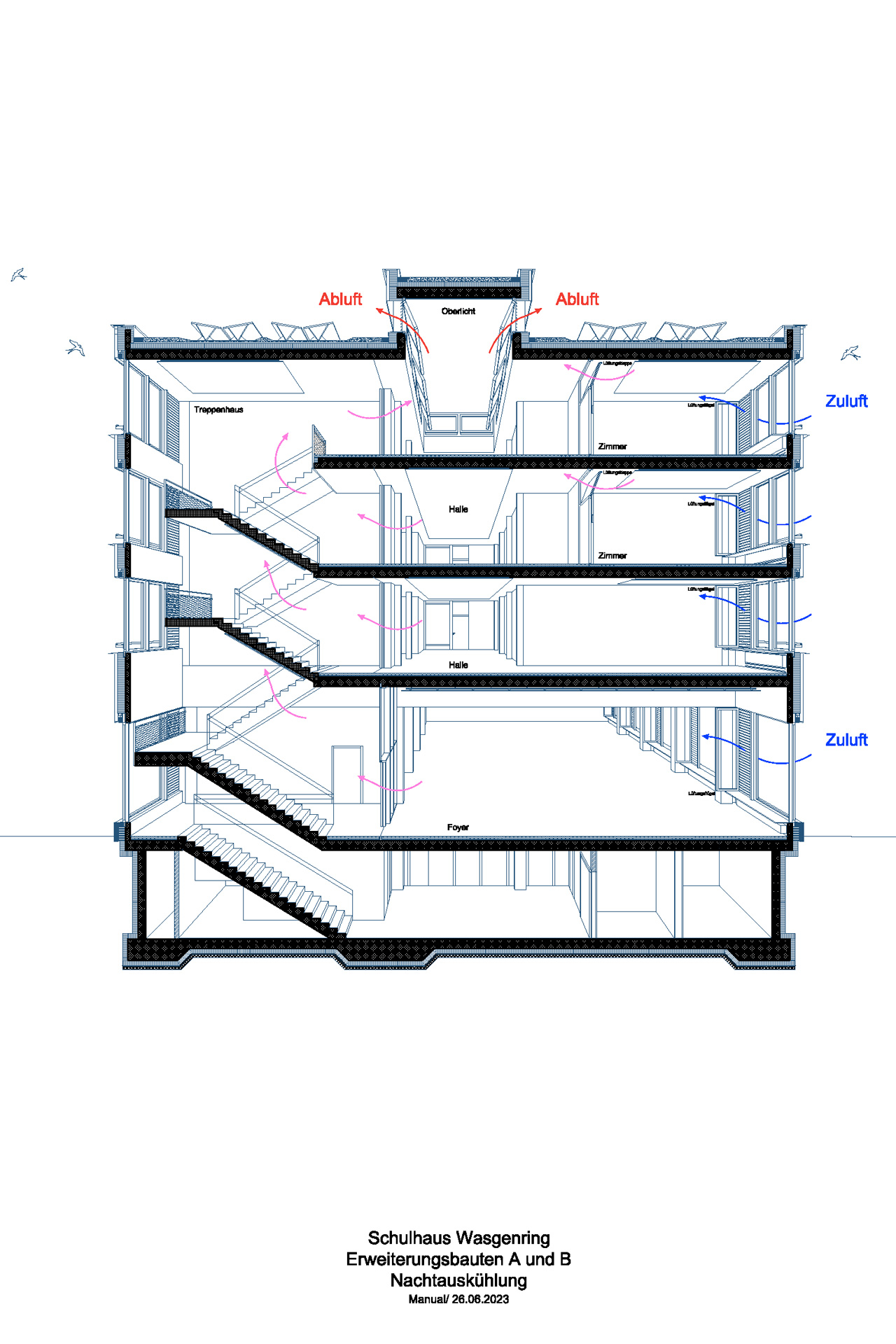
Die speziellen Fenster werden von Lehr- und Fachpersonen manuell von innen geöffnet und sorgen – mithilfe von offenen Lüftungsklappen oberhalb der Türrahmen und im Dach – für einen kühlen Durchzug während heisser Sommernächte. «Vorbild für unser Vorhaben war das Landwirtschaftliche Zentrum St. Gallen», erklärt Schünemann. «Dort lassen sich die Unterrichtsräume mit Lüftungsflügeln in der Fassade und Lüftungsklappen im Dach kühlen.»

Im Gegensatz zu hochkomplexen, elektronisch gesteuerten Systemen setzten Richter Tobler Architekten bei der Primarstufe Wasgenring auf eine Low-Tech-Lösung. «In den letzten Jahrzehnten hat es angefangen, dass man Lüftungen und Fenster elektronisch ansteuert, was im Unterhalt sehr teuer ist und bei den Nutzenden oft schlecht ankommt», erklärt Schünemann. Die einfache manuelle Bedienung der Lüftungsklappen und Fensterflügel soll den Lehrpersonen mehr Kontrolle geben. Gleichzeitig bedeutet dies auch, dass es in ihrer Verantwortung liegt, die Fenster in einer Hitzenacht geöffnet zu lassen oder sie wegen eines Gewittersturms vorausschauend zu schliessen.

Bild Legende:
Was wie heruntergekurbelte Fensterstoren aussieht, sind Wetterschutzgitter an der Fassade.

Inzwischen steigen Hacker, Glanzmann und Schünemann im Gebäude A die Treppen hoch, vorbei an Aula, Tagesstruktur und Musikräumen. Im zweiten Stockwerk befinden sich vier Klassenzimmer und in der Gebäudemitte, in der zentralen Halle vor den Klassenzimmern, mehrere Fenster in der Decke: ein Oblicht. Heinz Glanzmann zeigt auf die angebrachten Hebel an den hoch liegenden Fenstern ausserhalb seiner Reichweite. «Einzig diese Lüftungsklappen im Dach sind elektronisch gesteuert», erklärt er. Dank intelligenten Sensoren, sogenannten Wetterwächtern, öffnen sich die Fensterklappen in einer trockenen, sturmfreien Nacht, wenn die Aussentemperatur unter 24 Grad Celsius und die Innentemperatur über 25 Grad Celsius liegt. In diesem Fall würde ein sogenannter Kamineffekt entstehen: Warme Luft steigt. Die Nachtauskühlung funktioniert durch den thermischen Luftstrom von den Öffnungen in der Fassade durch das Gebäude bis über die Öffnungen im Dach. Von aussen zirkuliert frische Nachtluft ins Gebäudeinnere und kühlt die Decken und Wände und kann damit die Aufheizung der Räume am Tag reduzieren.

Bauweise und Materialien

«Bei einem Holzhaus funktioniert dieses Lüftungssystem nicht, weil Holz keine Wärme speichert», erklärt Schünemann, während sie das Treppenhaus wieder hinuntersteigt. «Beton und Backstein hingegen nehmen die Wärme auf oder kühlen ab, wenn die kalte Nachtluft durch streicht.» Die Decken und Wänden müssen dabei möglichst frei von Hindernissen sein, um optimal abzukühlen.

Bild Legende:
Schulleiterin Patricia Hacker (links) und Projektleiterin Dagmar Schünemann (rechts) stehen unter dem Oblicht, das sich automatisch öffnet.

Hacker führt Glanzmann und Schünemann aus dem Gebäude A in das Gebäude B. Hier sind Textil- und Werkräume entstanden – erneut mit Fensterflügeln und Lüftungsklappen, um über die Öffnungen in den Sommernächten kühle Luft einzuschleusen. Die beiden Projektleiter sind beeindruckt, wie bunt und kreativ die Ateliers inzwischen aussehen. Vor einem Jahr waren die Räume noch leer und steril, nun trocknen draussen frisch gefärbte T-Shirts an einer Wäscheleine, drinnen stehen Nähmaschinen und Bastelmaterialien.

Rückmeldungen und Ausblick

Schulleiterin Patricia Hacker hat bisher keine Rückmeldungen erhalten, dass es in den neuen Gebäuden zu heiss sei. «Allerdings war dieser Sommer bisher auch kühl und nass», fügt sie hinzu. Wie sich das neue Lüftungssystem und dessen Handhabung für Nutzerinnen und Nutzer durchsetzt, wird sich in den nächsten Monaten zeigen. Im Frühling wurden Messgeräte im Schulgebäude installiert, um die Temperaturentwicklung zu beobachten. «Im Gebäude A haben wir 20 und im Trakt B sieben Messgeräte angebracht», erklärt Schünemann. «Wir wollen vergleichen, wie die Temperaturen sich entwickeln, wenn man die Fenster in der Nacht öffnet.» Erste Ergebnisse werden im Herbst erwartet, um festzustellen, ob zusätzliche Schulungen innerhalb des Kollegiums nötig sind.

Heinz Glanzmann und Dagmar Schünemann gehen zurück zum Eingang des Schulareals, der Rundgang ist beendet. Sie sind zuversichtlich, dass die Nachtauskühlung funktionieren kann, solange die Nutzerinnen und Nutzer richtig angeleitet werden. Die neuen Gebäude der Primarstufe Wasgenring könnten ein Beispiel dafür sein, wie durchdachte Architektur und einfache technische Lösungen dazu beitragen, das Lernklima auch bei steigenden Temperaturen angenehm zu gestalten.

Besonders Heinz Glanzmann, der sich mit vielen Schulstandorten und Kollegien austauscht, weiss um die Bedeutung eines angenehmen Klimas für Lehr- und Fachpersonen und Schülerinnen und Schüler: «Ich bekomme viele Rückmeldungen, dass es zu heiss ist», sagt er. Er möchte die Möglichkeit der Nachtauskühlung auch bei anderen Standorten stärker nutzen. Sie kann ein Weg sein, sich an die zunehmend heissen Sommer anzupassen.

Text: Tamara Funck

Schulen bauen – die Rollenverteilung 

Bei Schulbauprojekten kommt das im Kanton Basel-Stadt etablierte Drei-Rollen-Modell (Finanzdepartement, Bau- und Verkehrsdepartement und Erziehungsdepartement) zum Einsatz. Im Fall des Erweiterungsbaus der Primarstufe Wasgenring vertritt Dagmar Schünemann als Projektleiterin des Bau- und Verkehrsdepartements, Abteilung Städtebau und Architektur, die Seite der Bauherrschaft. Ihr gegenüber steht Projektleiter Heinz Glanzmann, Vertreter der Nutzerseite und angestellt beim Erziehungsdepartement, Abteilung Raum und Anlagen. Er hatte in Kontakt mit Schulleiterin Patricia Hacker die Bedürfnisse von Lehr- und Fachpersonen sowie Kindern in das Bauvorhaben eingebracht.

abgelegt unter: , ,